中古一戸建て 砺波市東保
所在地
砺波市東保
830万円
98.41坪
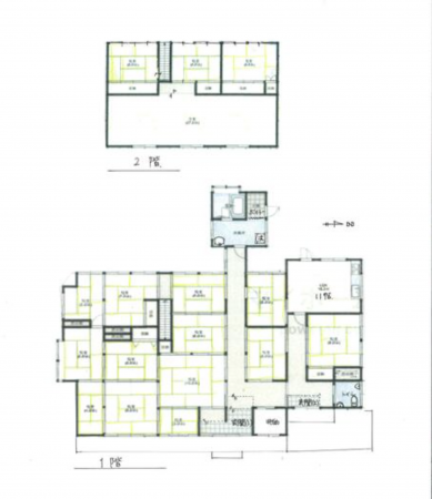
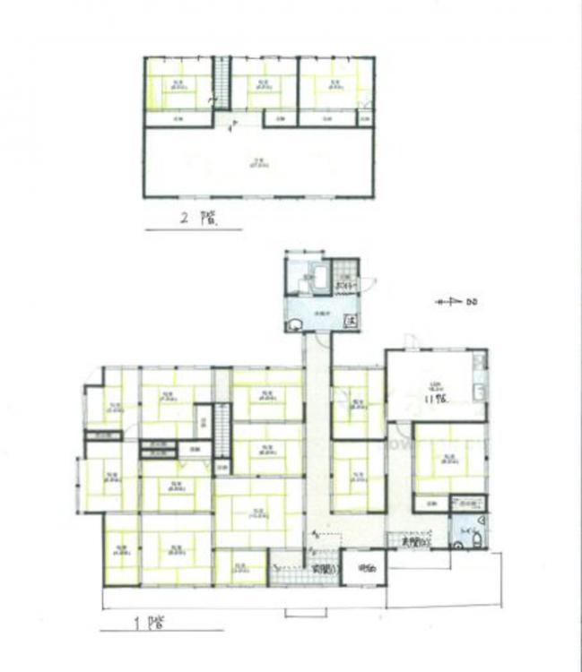
16LDK
築120年の古民家住宅 ゆったりとした敷地と室内で自由な生活を!!
砺波市B&G海洋センタープール (473m)
砺波向山健民公園 (692m)
庄東認定こども園 (747m)
砺波市上和田緑地キャンプ場 (2,946m)
栴檀野郵便局 (1,553m)
庄東小学校 (3,500m)
砺波市砺波総合運動公園サッカー・ラグビー広場 (4,077m)
般若中学校 (3,400m)
物件概要
- 交通
-
油田駅
- 接道状況
- 北側
- 土地面積
- 879.49㎡ (266.04坪)
- 建物面積
- 325.33㎡ (98.41坪)
- 築年数
-
1905年
(明治38)
6月
築120年 - 建ぺい率
- 60%
- 容積率
- 200%
- 土地権利
- 所有権
- 構造および階数
- 木造
- 小学校区
- 庄東 ( 3500m )
- 中学校区
- 般若 ( 3400m )
- 私道負担
- 地目
- 現況
- 居住中
- 引渡時期
- 駐車場
- 有
- 上水道
- 下水道
- ガス
- 都市計画
- 非線引区域
- 用途地域
- 設備・条件
- 備考
- 取引態様
- 仲介



