中古一戸建て 小矢部市後谷
所在地
小矢部市後谷
750万円
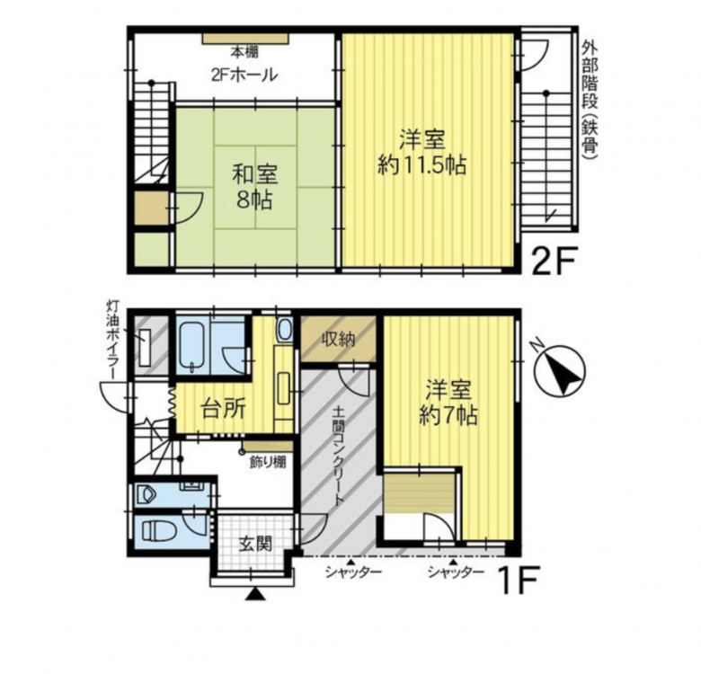
33.24坪
3K
・買い物便利(albisいするぎ駅店618m、ピアゴ小矢部店1,504m)
albisいするぎ駅店618m
ピアゴ小矢部店1,504m
ローソン小矢部野端店687m
ウエルシア小矢部石動駅店457m
小矢部市立石動中学校1,195m
物件概要
- 交通
-
とやま鉄道 石動駅 バス停後谷 まで 徒歩3分
- 接道状況
-
北西側 公道7.4m 間口約11.5m
南西側 公道18m 間口約26m - 土地面積
- 公簿 198.36㎡ (60.00坪)
- 建物面積
- 109.90㎡ (33.24坪)
- 築年数
-
1982年
(昭和57)
1月
築43年 - 建ぺい率
- 60%
- 容積率
- 200%
- 土地権利
- 所有権
- 構造および階数
- 鉄骨造 地上2階建
- 小学校区
- 石動
- 中学校区
- 石動 ( 1195m )
- 私道負担
- 地目
- 宅地
- 現況
- 空
- 引渡時期
- 相談
- 駐車場
- 有
- 上水道
- 下水道
- ガス
- 都市計画
- 非線引区域
- 用途地域
- 準工業
- 設備・条件
- 備考
- 取引態様
- 仲介



